Simply Enter the Eircode H53 T670 into Sat Nav & Follow Directions
DNG Glen Corcoran are delighted to offer for sale this excellent 5-Bedroom bungalow, situated on a site of approximately 0.50 acres, overlooking the Killcrow River. This spacious family home, located in the rural townland area of Clooncanbeg, just 1.5km from the village of Killimor, makes it ideal for those seeking both the peace and quiet of the countryside and the convenience of being close to a well serviced village.
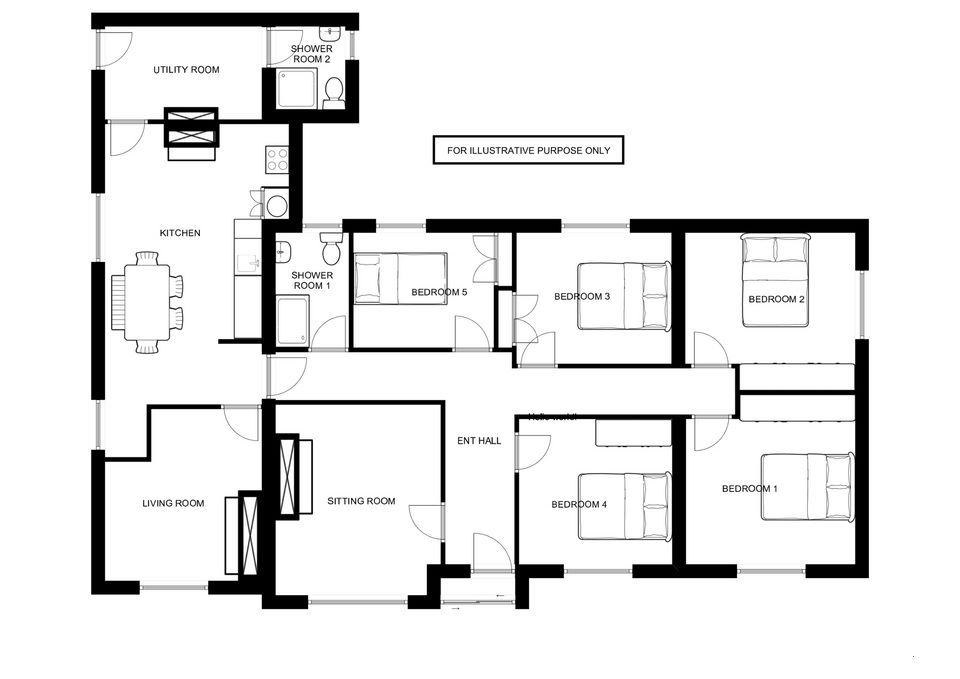
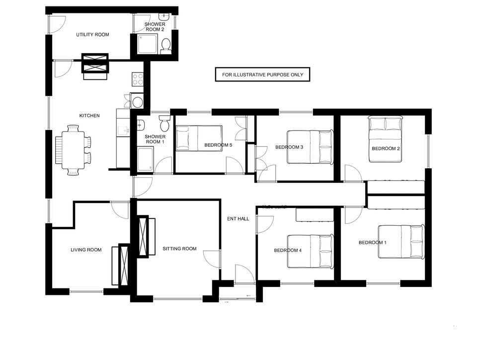
Internally, accommodation extends to c. 1,603sq.ft and includes Entrance Hall, Kitchen, Living Room, Sitting Room, 5 Bedrooms, 2 Shower Rooms & Utility Room. While in very good condition throughout, it would benefit from some upgrade works and offers incredible potential for those wishing to modernise and put their own stamp on the property.
The location of this home is particularly advantageous. It’s within a short distance of Killimor, where you'll find a primary school, doctors, surgery, pharamcy, convenience shop, pubs, sports clubs and a variety of local amenities. For those needing to commute or access larger urban centres, the towns of Portumna, Loughrea & Ballinasloe are just a short drive away (from 10 to 20 minutes) and a commute to Galway City just 45 mins.
This property combines the tranquility of country living with convenient access to a well serviced village, making it an ideal family home. Early viewing is highly recommended to fully appreciate all that this wonderful home has to offer.
Entrance Hall - 4.0m x 1.5m
Kitchen - 7.23m x 3.4m
Sitting Room - 4.01m x 3.28m
Living Room - 3.4m x 3.55m
Bedroom 1 - 3.67m x 3.54m
Bedroom 2 - 3.67m x 3.55m
Bedroom 3 - 3.32m x 3.15m
Bedroom 4 - 3.36m x 2.87m
Bedroom 5 - 3.04m x 2.49m
Shower Room 1 - 2.49m x 1.61m
Shower Room 2 - 1.8m x 1.51m
Utility Room - 1.52m x 3.4m
Submit an enquiry and someone will be in contact shortly.
By setting a proxy bid, the system will automatically bid on your behalf to maintain your position as the highest bidder, up to your proxy bid amount. If you are outbid, you will be notified via email so you can opt to increase your bid if you so choose.
If two of more users place identical bids, the bid that was placed first takes precedence, and this includes proxy bids.
Another bidder placed an automatic proxy bid greater or equal to the bid you have just placed. You will need to bid again to stand a chance of winning.